Light Loft Amsterdam RECONSTRUCTION White Loft Amsterdam White minimalistic kitchen Light Masterbedroom masterbedroom with french balcony
Terug
Terug

AMSTERDAMS PAKHUIS TRANSFORMATIE WITTE LOFT

Amsterdam 2022

AMSTERDAMS PAKHUIS TRANSFORMATIE WITTE LOFT, Amsterdam, 2022

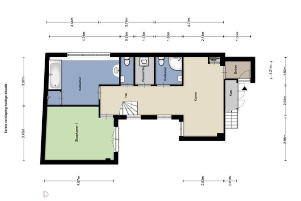
Voor

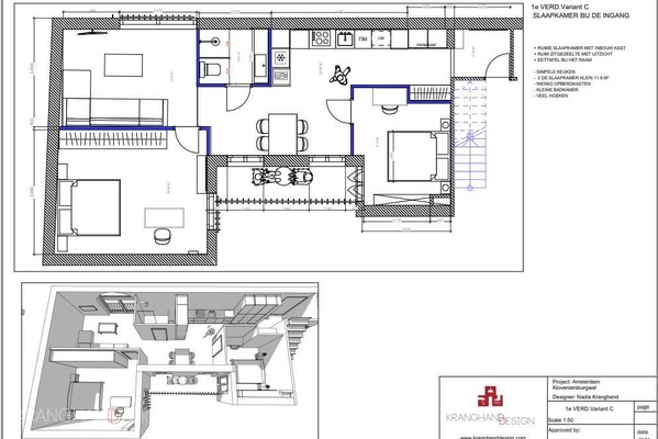
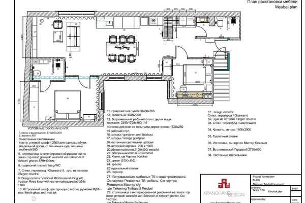
3D visualisatie, tekeningen, moodboards

Review Van Klanten:

"Nadia from KranghandDesign worked wonders in transforming our once dark warehouse space into two apartments. The idea of adding a balcony initially seemed unreal, but Nadia and her team secured all building permissions for it and for enlarging all the windows – truly amazing!  The layouts of both apartments received numerous compliments, showcasing her skill in maximizing every inch of space.  She also did the final styling f......"

Interesse om een project met mij te starten? Boek een gratis kenismakingsgesprek

Cookies Beleid
Deze website maakt gebruik van cookies om ervoor te zorgen dat u de beste ervaring op onze website krijgt. Door deze site te blijven gebruiken, gaat u akkoord met het gebruik van cookies. Onze Privacy Policy biedt meer informatie en legt uit hoe u uw cookie-instellingen kunt wijzigen.
Ok, accepteer