Назад
Назад

Салон красоты и спа Liliglory

Шанхай, Китай 2017
КАЖДЫЙ ДИЗАЙНЕР ЗНАЕТ, ЧТО ПЕРЕДЕЛЫВАТЬ СУЩЕСТВУЮЩИЙ ИНТЕРЬЕР ВСЕГДА СЛОЖНЕЕ И ХЛОПОТНЕЕ, ЧЕМ СОЗДАВАТЬ С НУЛЯ. ЕЩЁ СЛОЖНЕЕ, КОГДА СИЛЬНО ОГРАНИЧЕН БЮДЖЕТ. ИМЕННО В ТАКИХ СИТУАЦИЯХ НАС, ДИЗАЙНЕРОВ, ВЫРУЧАЕТ НАШ ДАР-КРЕАТИВНОСТЬ. ФОТОГРАФИЯ: TETIANACHEBOTAR. ГРАФИЧЕСКИЙ ДИЗАЙН: LERASEGA.

Салон красоты и спа Liliglory, Шанхай, Китай, 2017

Пожелания заказчика:

Создать на базе существующего интерьера салон-парикмахерскую в минималистичном стиле и «связать Запад с Востоком». Дизайн нового логотипа и вывески должны соответствовать новому образу интерьера.

Как и в музыке, ритм в дизайне интерьеров создает повторяющиеся мотивы и контрасты.Ритм с повторением стал основным принципом дизайна первого этажа. Ритм перегородок, зеркал, подвесных светильников и текстуры пола создаёт гармонию и визуальный интерес, заставляя взгляд перемещаться по комнате.

На втором этаже старый сундучок- стол, китайские картины, подсвечники разных текстур и размеров добавляют уюта и загадочности.

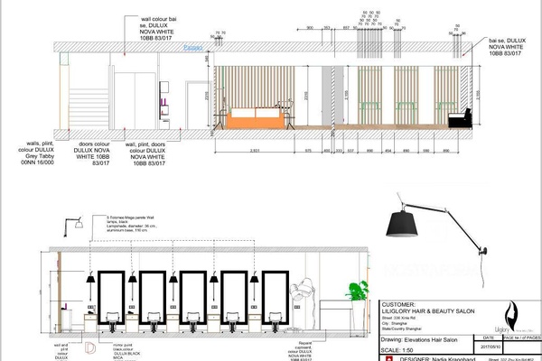
3D визуализация и технические чертежи

Отзыв клиента:

Lili Hameder, Shanghai, China
"Nadia is a lovely interior designer, very competent and fast in response to emails and enquiries. She is great at working to what you like, always listens and is very patient when one changes one's mind! I've enjoyed working with her and can thoroughly recommend her...."

Хотите заказать дизайн проект? Давайте познакомимся и обсудим вашу ситуацию. 30 минут бесплатно

Использование cookies
Этот веб-сайт использует файлы cookie, чтобы обеспечить вам наилучший опыт работы на нашем веб-сайте. Продолжая пользоваться этим сайтом, вы даете согласие на использование файлов cookie. Наша Политика конфиденциальности содержит дополнительную информацию и объясняет, как изменить настройки ваших файлов cookie.
Ok, принимаю