en-suite deuren woonkamer idee Verlichting modern classiek appartement
Terug
Terug

AMSTERDAM ZUID KLASSIEK - MODERN APPARTEMENT: Tijdloze Elegantie Ontmoet Hedendaags Comfort

Nederland, Amsterdam 2024
In het bruisende hart van Amsterdam Zuid, verwelkomde dit prachtige appartement zijn nieuwe eigenaren met open armen. Mijn uitdaging was om de ruimte opnieuw vorm te geven, zodat het niet alleen comfortabel zou zijn voor het dynamische duo, maar ook geschikt zou zijn voor de familie met twee kinderen. De klanten hadden een duidelijke visie voor ogen: een perfecte balans tussen modern en klassiek, met een vleugje luchtigheid en licht. Witte tinten zouden de hoofdrol spelen in dit harmonieuze palet, waardoor elke hoek van het appartement een oase van sereniteit zou worden.

AMSTERDAM ZUID KLASSIEK - MODERN APPARTEMENT: Tijdloze Elegantie Ontmoet Hedendaags Comfort, Nederland, Amsterdam, 2024

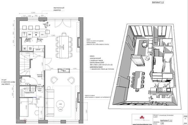
Mijn eerste uitdaging was het herindelen van de ruimte om te voorzien in de behoeften van een groeiend gezin. Voldoende kastruimte werd een prioriteit, en de keuken moest niet alleen ergonomisch zijn, maar ook een centraal punt vormen voor gezellige familiemomenten. Een imposant kookeiland werd het kloppende hart van deze ruimte, waar gastronomische creaties en dierbare herinneringen hand in hand zouden gaan.

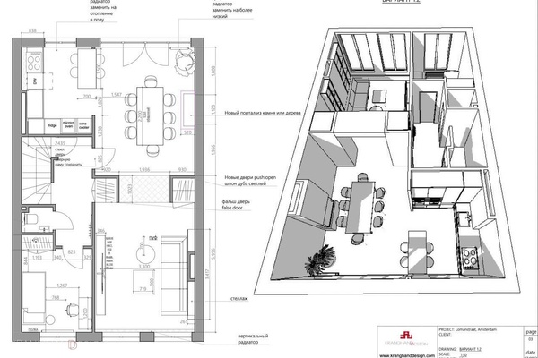
Om plaats te bieden aan een grote tv, hebben we het openhaardportaal opgeofferd. Het tweede haardportaal was bekleed met travertijn. De tweede deur naar de woonkamer werd verwijderd om plaats te bieden aan een ruime bank. Ook de vensterbank werd bij het ontwerp betrokken. Ze maakten er een gezellige plek van om te ontspannen bij het raam en verborgen de radiator.

Een bijzondere uitdaging was het vinden van de perfecte indeling voor de kleinste kamer, die bestemd was voor de oudste dochter. Een beetje puzzelen en creativiteit waren nodig om een oase van gezelligheid te creëren in deze knusse ruimte, waar haar persoonlijkheid kon bloeien.

Verlichting. Ik heb het originele pleisterwerk op het plafond behouden en een tweelaagse sierlijstverlichting rondom de gehele omtrek geïntegreerd. Deze verlichting verlicht niet alleen de kamer, maar creëert ook een knusse sfeer en geeft het interieur een gevoel van lichtheid en betovering. Wandlampen benadrukken details en voegen een elegante touch toe. De kroonluchter boven de eettafel draagt bij aan een luchtige en etherische ambiance.

Het appartement straalt rust uit, dankzij overvloedig gebruik van lichte tinten en texturen die door de ruimte dansen. De combinatie van behouden plafonddetails en strategisch geplaatste verlichtingselementen verbetert de algehele esthetiek, waardoor het interieur zowel uitnodigend als magisch aanvoelt. #Interieurverlichting #Sierlijstverlichting #ElegantOntwerp"

Het resultaat was een samensmelting van tijdloze stijlen, waar modern en klassiek elkaar omarmden. Het appartement straalde een serene rust uit, dankzij de overvloed aan witte tinten die door de ruimte dansten. De klant was verheugd dat al hun wensen in vervulling waren gegaan, en het appartement was getransformeerd tot een droomhuis waar elk gezinslid zijn eigen stempel kon drukken op dit nieuwe, gedeelde hoofdstuk van hun leven.

Voor

3D visualisatie, tekeningen, moodboards

Interesse om een project met mij te starten? Boek een gratis kenismakingsgesprek

Cookies Beleid
Deze website maakt gebruik van cookies om ervoor te zorgen dat u de beste ervaring op onze website krijgt. Door deze site te blijven gebruiken, gaat u akkoord met het gebruik van cookies. Onze Privacy Policy biedt meer informatie en legt uit hoe u uw cookie-instellingen kunt wijzigen.
Ok, accepteer